








1-к кв. Москва ул. Трехполье, 6к1 (33.0 м²)
Риэлтор уже есть!!! 2% если Ваш клиент. Фотки нельзя брать, рекламировать на своих площадках нельзя, эксклюзива не будет! Не тратьте мое время пустыми звонками.
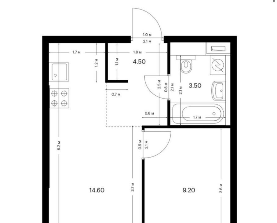
Продается уютная однокомнатная квартира в современном жилом комплексе в районе Коммунарка, Новомосковский административный округ. Квартира расположена на 4-м этаже 14-этажного дома, построенного в 2025 году. Общая площадь квартиры составляет 33 кв. м, а просторная кухня занимает 15 кв. м. До станции метро "Саларьево" всего 15 минут пешком.
Квартира выполнена в дизайнерском стиле, что создает атмосферу уюта и современности. В ней есть все необходимое для комфортной жизни. Кухня оборудованна встроенной техникой (свч,посудомойка, духовка) и позволит вам с удовольствием готовить и наслаждаться приемом пищи. Санузел совмещенный, выполнен в современном стиле. Окна квартиры выходят на улицу, обеспечивая хорошее естественное освещение.
Дом оборудован как пассажирским, так и грузовым лифтами, а для вашего автомобиля предусмотрена удобная подземная парковка. Жилой комплекс находится в отличном состоянии, что гарантирует комфортное проживание.
В шаговой доступности расположены школы, детские сады, клиники и магазины, поэтому все необходимое для жизни находится рядом. Отличная транспортная доступность позволяет быстро добраться до центра города и других районов Москвы.
Продажа осуществляется без посредников, от собственника. Возможна покупка в ипотеку, обременений нет. Эта квартира — идеальный вариант для тех, кто ищет комфортное и современное жилье в спокойном районе столицы.
Особенности
Другие однокомнатные квартиры
Последние добавленные апартаменты
О нас говорят
Хорошая услуга «Личный помощник». За вами закрепляют менеджера, который подбирает для вас варианты, помогает с подписанием договора и проверкой квартиры. Константин оперативно отвечал на наши вопросы и подстраивался под возникающие в ходе поиска требования.
Ins Fairy
Нашел себе отличную квартиру в Мск на Локалс. В этот раз пользовался услугой Личный помощник; Каждый день мне присылали варианты и по моим ответам уточняли мои критерии. В итоге выбрали прямо то, что мне было надо!
Ilya Malov
Отличный сервис! Нужный вариант подобрали уже на следующий день после обращения. Документы с арендодателем я подписала в конце той же недели и сразу переехала. Квартира после ремонта, все новое, я — первый арендатор, до метро 15 минут пешком. Это потрясающе!
Maria Levkina
Поиски квартиры заняли ровно неделю, Андрей проверял все варианты и составлял подробное описание. Так же оказал помощь при подписании договора. И вот теперь, я снимаю квартиру без комиссии, от собственника, с хорошим ремонтом, в новом доме по приемлемой цене.
Dmitry Kovtun
Клиентоориентированность — на высшем уровне. И форма связи любая.. мне было удобно общаться через почту — не проблема: в будни и даже в выходные, и днем и ночью — постоянно на связи) В какой-то момент даже подумала, что личный помощник никогда не отдыхает))
Teresa Olehnovich
Услуга «Личный помощник» — это не только дешевле, чем платить деньги каким-то непонятным посредникам или риэлторам, но и гарантированная ежедневная консультация от грамотного специалиста. Одним словом, всё очень понравилось.
Алина Василевская
Моя оценка 5! Нашли с личным помощником то, что нужно!! Удобно и безопасно. Отличный, проверенный сайт! Спасибо, Локалс!
Еленка Потапова
Искал с помощью услуги «Личный помощник». Сервис справился с поставленной перед ним задачей — найти мне жильё в короткие сроки (дедлайн 1,5 недели). Спасибо!
Dimas
У меня только положительные впечатления остались. Мне присылал варианты каждый день, иногда даже дважды. Всегда оперативно реагировал на мои пожелания. В итоге, так и сняли одну из предложенных квартир и очень довольны.
Любовь












