1-к кв. Москва Малая Почтовая ул., 12 (32.1 м²)
Есть свой Агент!!!
Агентов прошу звонить по существу, а не с пустыми вопросами и размышлениями ни о чем.
Общая площадь 32,1 м
Квартира создана по стильному и функциональному ДИЗАЙН-проекту, продуманному до мелочей. В отделке квартиры применено много интересных решений, включающих элементы, выполненные под заказ. Можно заезжать и жить уже сейчас!
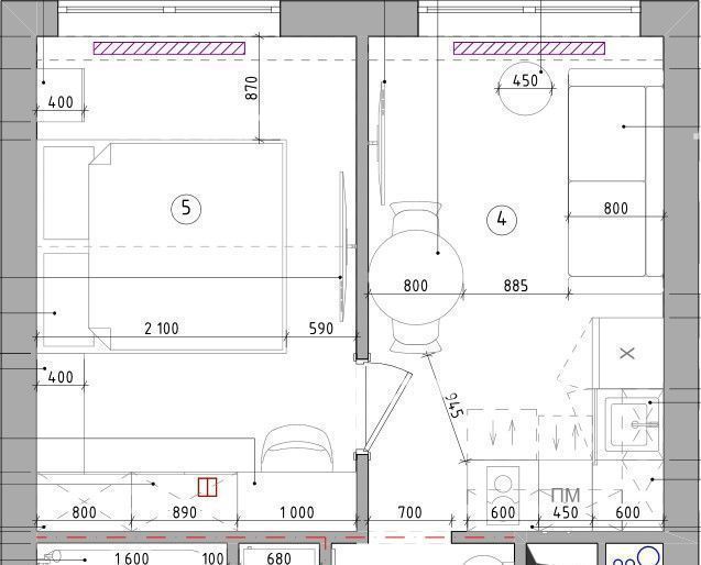
Лучшее планировочное решение: кухня-гостиная (14кв.м.); спальня с рабочей зоной и зоной для хранения (10кв.м.); санузел с ванной (4,5кв.м.); гардеробная (3кв.м.).
Окна квартиры выходят во двор.
В мокрых зонах квартиры и возле элементов системы отопления установлены датчики протечек. Двери скрытого монтажа, молдинги, 3D-панели, стыки зон и комнат без порожков. Установлен сплит-кондиционер в соответствии со стандартами ЖК, а также проточный водонагреватель, исключающий дискомфорт во время планового отключения горячей воды. Продуманное комфортное освещение включает систему контражурной закарнизной подсветки. Уютная и функциональная кухня-гостиная, состоящая из столовой группы и диванной зоны, включает в себя кухонную мебель, сделанную на заказ, всю необходимую встроенную технику, а также фильтры для очистки воды.
Выбирая квартиру в ЖК MYPRIORITY Basmanny, вы не только становитесь обладателями квартиры-мечты, но и инвестируете свои средства, т.к. популярность и престиж данного ЖК на сегодняшний день только растет.
MYPRIORITY Basmanny - привилегия высоких стандартов жизни в уютном центре столицы.
Жилой комплекс бизнес-класса на берегу Яузы, рядом с МГТУ имени Баумана, в окружении памятников архитектуры и старинных усадебных парков.
Исторический центр Москвы, динамичная современная архитектура, приватная благоустроенная территория, высокотехнологичная инженерия.
За несколько минут неспешной прогулки от жилого комплекса можно дойти до станции метро "Бауманская", набережной реки Яузы и парка. Рядом находится лучший технический вуз страны - МГТУ им. Баумана. Чтобы выехать на автомобиле на Садовое кольцо, понадобится всего 5 минут.
Старинные особняки и усадьбы соседствуют с современными торговыми и бизнес-центрами, зеленые парки и бульвары - с креативными кластерами, знаменитые театры и музеи, лучшие школы и вузы, уютные кафе, уникальные храмы, отличные клиники, модные магазины.
Особенности
Последние добавленные апартаменты
О нас говорят
Хорошая услуга «Личный помощник». За вами закрепляют менеджера, который подбирает для вас варианты, помогает с подписанием договора и проверкой квартиры. Константин оперативно отвечал на наши вопросы и подстраивался под возникающие в ходе поиска требования.
Ins Fairy
Нашел себе отличную квартиру в Мск на Локалс. В этот раз пользовался услугой Личный помощник; Каждый день мне присылали варианты и по моим ответам уточняли мои критерии. В итоге выбрали прямо то, что мне было надо!
Ilya Malov
Отличный сервис! Нужный вариант подобрали уже на следующий день после обращения. Документы с арендодателем я подписала в конце той же недели и сразу переехала. Квартира после ремонта, все новое, я — первый арендатор, до метро 15 минут пешком. Это потрясающе!
Maria Levkina
Поиски квартиры заняли ровно неделю, Андрей проверял все варианты и составлял подробное описание. Так же оказал помощь при подписании договора. И вот теперь, я снимаю квартиру без комиссии, от собственника, с хорошим ремонтом, в новом доме по приемлемой цене.
Dmitry Kovtun
Клиентоориентированность — на высшем уровне. И форма связи любая.. мне было удобно общаться через почту — не проблема: в будни и даже в выходные, и днем и ночью — постоянно на связи) В какой-то момент даже подумала, что личный помощник никогда не отдыхает))
Teresa Olehnovich
Услуга «Личный помощник» — это не только дешевле, чем платить деньги каким-то непонятным посредникам или риэлторам, но и гарантированная ежедневная консультация от грамотного специалиста. Одним словом, всё очень понравилось.
Алина Василевская
Моя оценка 5! Нашли с личным помощником то, что нужно!! Удобно и безопасно. Отличный, проверенный сайт! Спасибо, Локалс!
Еленка Потапова
Искал с помощью услуги «Личный помощник». Сервис справился с поставленной перед ним задачей — найти мне жильё в короткие сроки (дедлайн 1,5 недели). Спасибо!
Dimas
У меня только положительные впечатления остались. Мне присылал варианты каждый день, иногда даже дважды. Всегда оперативно реагировал на мои пожелания. В итоге, так и сняли одну из предложенных квартир и очень довольны.
Любовь












