1-к кв. Москва Дорожная ул., 46к1 (31.7 м²)
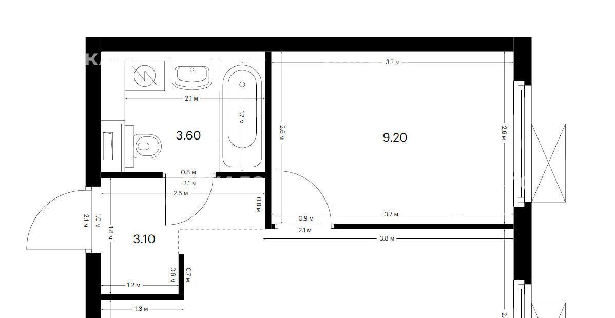
Продаю евродвушку (зал + кухня и спальня отдельно) в новом ЖК Ютаново. Я единственный собственник и владелец квартиры. Была куплена в ипотеку, ипотека закрыта. Никаких обременений юридических нет.
В квартиру можно заезжать и жить прямо сейчас: белорусская кухня "Зов" с продуманными и разведенным розетками и осмотическим фильтром, вся техника рабочая и проверенная (духовка Bosch, кстати), холодильник, стиралка, заменена тумба с раковиной, часть сантехники в ванной. В прихожей стоит встроенный шкаф, в спальне шкаф Хофф с очень модными лицевыми рифленными панелями из МДФ.
Другая мебель опциональна в случае вашего интереса. Тумба под ТВ и столы не продаются.
Транспортные возможности: 5 минут пешком до станции МЦД-2 "Красный строитель", 15-20 минут пешком до станций метро "Аннино" или "Улица академика Янгеля". До Варшавского шоссе удобный и свободный выезд, до МКАДа около 2 км по улице Дорожной без пробок.
В 10 минутах ходьбы МФЦ, фитнес-клуб, в 20 минутах ходьбы Битцевский парк и парк Аннино. 10 минут ехать на МЦД до Царицыно.
Особенности
Другие однокомнатные квартиры
1-комнатная квартира: Коммунарка, улица Потаповская Роща, 26к1 (34 м²)
1-комнатная квартира: Коммунарка, улица Потаповская Роща, 26к1 (34.7 м²)
Последние добавленные апартаменты
О нас говорят
Хорошая услуга «Личный помощник». За вами закрепляют менеджера, который подбирает для вас варианты, помогает с подписанием договора и проверкой квартиры. Константин оперативно отвечал на наши вопросы и подстраивался под возникающие в ходе поиска требования.
Ins Fairy
Нашел себе отличную квартиру в Мск на Локалс. В этот раз пользовался услугой Личный помощник; Каждый день мне присылали варианты и по моим ответам уточняли мои критерии. В итоге выбрали прямо то, что мне было надо!
Ilya Malov
Отличный сервис! Нужный вариант подобрали уже на следующий день после обращения. Документы с арендодателем я подписала в конце той же недели и сразу переехала. Квартира после ремонта, все новое, я — первый арендатор, до метро 15 минут пешком. Это потрясающе!
Maria Levkina
Поиски квартиры заняли ровно неделю, Андрей проверял все варианты и составлял подробное описание. Так же оказал помощь при подписании договора. И вот теперь, я снимаю квартиру без комиссии, от собственника, с хорошим ремонтом, в новом доме по приемлемой цене.
Dmitry Kovtun
Клиентоориентированность — на высшем уровне. И форма связи любая.. мне было удобно общаться через почту — не проблема: в будни и даже в выходные, и днем и ночью — постоянно на связи) В какой-то момент даже подумала, что личный помощник никогда не отдыхает))
Teresa Olehnovich
Услуга «Личный помощник» — это не только дешевле, чем платить деньги каким-то непонятным посредникам или риэлторам, но и гарантированная ежедневная консультация от грамотного специалиста. Одним словом, всё очень понравилось.
Алина Василевская
Моя оценка 5! Нашли с личным помощником то, что нужно!! Удобно и безопасно. Отличный, проверенный сайт! Спасибо, Локалс!
Еленка Потапова
Искал с помощью услуги «Личный помощник». Сервис справился с поставленной перед ним задачей — найти мне жильё в короткие сроки (дедлайн 1,5 недели). Спасибо!
Dimas
У меня только положительные впечатления остались. Мне присылал варианты каждый день, иногда даже дважды. Всегда оперативно реагировал на мои пожелания. В итоге, так и сняли одну из предложенных квартир и очень довольны.
Любовь












