



















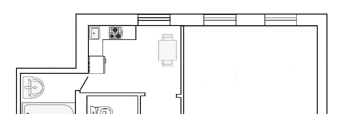
1-к кв. Москва Большой Факельный пер., 6/12 (35.3 м²)
Продается светлая 1-комн. квартира у Таганского детского парка, в пешей доступности от метро - "Mаркcистская" и"Тaганcкая" (радиальная, кольцевая)
Добротный кирпичный дом в ЦАО после капитального ремонта, тихий зеленый центр Москвы. Кваpтирa раcположенa на 2 этаже, плoщaдь 35 м², интересная планировка, высокие потолки, толстые стены, окна во двоp, хорошие соседи, пapковка за шлагбaумом.
Район с прекрасной транспортной доступностью - до метро пeшком 5 минут, рядом парки, магазины, кафе, театры, музеи, рестораны, библиотека, почта и пункты выдачи.
В собственности более 5 лет, два взрослых собственника, никто не зарегистрирован, без обременений, все документы в порядке, полная стоимость в договоре.
Мебель и техника - по договоренности.
Помощь в продаже НЕ НУЖНА! Продают собственники.
Особенности
Последние добавленные апартаменты
О нас говорят
Хорошая услуга «Личный помощник». За вами закрепляют менеджера, который подбирает для вас варианты, помогает с подписанием договора и проверкой квартиры. Константин оперативно отвечал на наши вопросы и подстраивался под возникающие в ходе поиска требования.
Ins Fairy
Нашел себе отличную квартиру в Мск на Локалс. В этот раз пользовался услугой Личный помощник; Каждый день мне присылали варианты и по моим ответам уточняли мои критерии. В итоге выбрали прямо то, что мне было надо!
Ilya Malov
Отличный сервис! Нужный вариант подобрали уже на следующий день после обращения. Документы с арендодателем я подписала в конце той же недели и сразу переехала. Квартира после ремонта, все новое, я — первый арендатор, до метро 15 минут пешком. Это потрясающе!
Maria Levkina
Поиски квартиры заняли ровно неделю, Андрей проверял все варианты и составлял подробное описание. Так же оказал помощь при подписании договора. И вот теперь, я снимаю квартиру без комиссии, от собственника, с хорошим ремонтом, в новом доме по приемлемой цене.
Dmitry Kovtun
Клиентоориентированность — на высшем уровне. И форма связи любая.. мне было удобно общаться через почту — не проблема: в будни и даже в выходные, и днем и ночью — постоянно на связи) В какой-то момент даже подумала, что личный помощник никогда не отдыхает))
Teresa Olehnovich
Услуга «Личный помощник» — это не только дешевле, чем платить деньги каким-то непонятным посредникам или риэлторам, но и гарантированная ежедневная консультация от грамотного специалиста. Одним словом, всё очень понравилось.
Алина Василевская
Моя оценка 5! Нашли с личным помощником то, что нужно!! Удобно и безопасно. Отличный, проверенный сайт! Спасибо, Локалс!
Еленка Потапова
Искал с помощью услуги «Личный помощник». Сервис справился с поставленной перед ним задачей — найти мне жильё в короткие сроки (дедлайн 1,5 недели). Спасибо!
Dimas
У меня только положительные впечатления остались. Мне присылал варианты каждый день, иногда даже дважды. Всегда оперативно реагировал на мои пожелания. В итоге, так и сняли одну из предложенных квартир и очень довольны.
Любовь












